Жироуловитель бытовой под мойку ー купить от производителя в Уфе
Спроектируем для Вас систему очистки и произведем монтаж на объекте!
Проектирование очистных сооружений
ЖИРОУЛОВИТЕЛЬ ALTA M ПОД МОЙКУ - ЗАЩИТИТ ТРУБЫ ОТ ЖИРА, А КОШЕЛЁК ОТ ШТРАФОВ
Жироуловитель под мойку - это не отстойник, а очистная установка, которая может быть установлена внутри помещения под мойкой и гарантирует очистку стока от жира до норм согласно Постановлению Правительства РФ №644 от 29.07.2013 г.
|
![]() |
![]() |
|
|
Нет штрафов |
Отсутствие запахов |
Соответствие нормам СанПина |
Трубы не забиваются |
|
Жироуловитель гарантирует очистку стока от жира до установленных норм |
Полностью герметичен, поэтому неприятные запахи исключены |
Экспертное заключение 409г/2015 "О соответствии продукции Единым гигиеническим требованиям" |
Трубы на кухне не забиваются. Тем самым вы экономите на дорогостоящем ремонте |
Требования к жироуловителям под мойку
Удаление жировых отложений из труб - самые дорогостоящие и трудоемкие работы по обслуживанию инженерных сетей, поэтому организации ответственные за централизованную очистку стока и содержание общественных коллекторов канализации устанавливают жесткие требования по концентрации жиров в стоке. Жироуловители Alta рекомендованы для сохранения работоспособности канализационной системы предприятий общественного питания, пищевых производств, кафе, ресторанов, столовых, образовательных и детских дошкольных учреждений.
Жироуловители под мойку на выпусках производственных стоков предусмотрены для предприятий общественного питания работающих на полуфабрикатах, сырье, пищеблоках, а так же общеобразовательных школ на 5 и более параллелей классов, не оборудованных централизованным горячим водоснабжением, подробнее о требованиях к установке жироуловителей под мойку.
Купите жироуловитель под мойку от производителя Компании Alta Group и получите настоящее очистное оборудование.
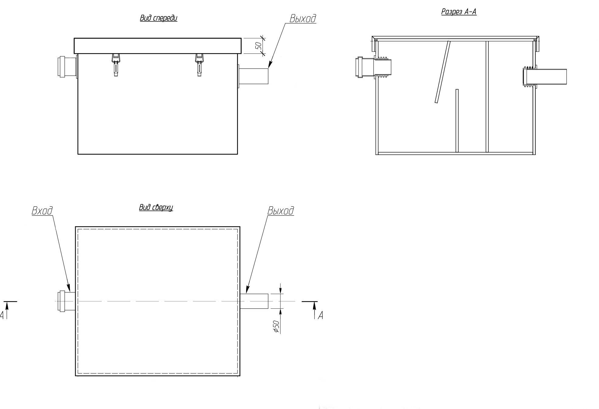
Технические характеристики жироуловителей под мойку
Устанавливаемый на кухню жироуловитель под мойку, состоит из следующих элементов:
Благодаря такой конструкции, подмоечные жироуловители Alta M-In способны очистить сток до нормативов, установленных законом.
Жироуловители под мойку Alta M-In изготавливаются из пищевого пластика. В соответствии с санитарно-эпидемиологическим заключением №77.01.03.485.П.014961.03.10 от 16.03.2010г., жироуловители Alta M-In разрешено устанавливать непосредственно в помещении кухни предприятий общественного питания.
Установка жироуловителей для кафе
Устанавливаются жироуловители под мойку путем встраивания оборудования между сливной трубой и канализационной трубой. В буквальном смысле, вы присоединяете сливную трубу к патрубку приемной камеры, а из выходного отверстия подводите трубу к канализации.
Модели жироуловителей от Alta Group рассчитываются исходя из производительности (количества моек) и залпового сброса в канализацию (размер моек). В каталоге у каждой модели вы можете найти данные характеристики как в карточке товара, так и на чертежах . Это поможет вам подобрать оптимальный жироуловитель под мойки на вашей кухне. Если вам сложно самостоятельно подобрать модель, то обратитесь к нашим менеджерам. Они проконсультируют вас, ответят на ваши вопросы и помогут подобрать оптимальную модель жироуловителей.
Стоит так же отметить, что жироуловители для кафе, ресторанов и столовых в зависимости от производительности могут быть расположены как внутри производственного цеха (под мойкой), так и установлены в грунт или в подсобные помещения ресторана.
Купить жироуловитель под мойку в Москве
Для владельца заведения с активно работающим кухонным блоком важно соблюдать нормы СанПин и избегать издержек, связанных с простоем самой кухни и дополнительным обслуживанием инженерных систем. Использование жироуловителей в кафе и ресторане избавит от лишних издержек, а менеджеры компании Alta Group всегда готовы проконсультировать вас и дать развернутые ответа на ваши вопросы.
Позвоните по номеру +7 (499) 113-20-18 или напишите в чат нашему менеджеру, и мы поможем быстро подобрать модель под ваши объемы.
Доставка жироуловителей
- После оплаты мы отгружаем жироуловитель в транспортную компанию.
- Доставка по Москве (+ 10 км от МКАД): осуществляется в течение 2-х дней после оплаты оборудования, до Вашего адреса.
-
Доставка по России: осуществляется 2-мя транспортными компаниями ПЭК и КИТ, до терминала транспортной компании Вашего города.
- Время доставки зависит от графика отправки грузов соответствующей транспортной компании.
Для уточнения данных по наличию и характеристикам продукции, а так же по срокам и стоимости доставки в Уфе позвоните по 8 (800) 100-09-40 и мы поможем вам подобрать лучшие условия приобретения Жироуловитель бытовой под мойку ー купить от производителя в Уфе




