Накопительная ёмкость Alta Tank 40 м3 в Уфе
Документы на оборудование
Описание
Накопительная ёмкость Alta Tank 40м3
Накопительная ёмкость Alta Tank 40 м3 в базовом исполнении предназначена для подземного монтажа, но может быть изготовлена по техническому заданию Заказчика для наземного монтажа.
Alta Tank 40 используется для хранения и накопления различных жидкостей (техническая и питьевая воды, хозяйственно-бытовые, промышленные, поверхностные сточные воды, агрессивные жидкости, такие как низкоконцентрированные кислоты, щелочи и прочие жидкости).
Материал емкости полипропилен - не токсичен и безопасен!Накопительная ёмкость Alta Tank 40 м3 может использоваться в качестве буферного резервуара и для обеспечения производственных процессов как самостоятельно, так и в составе различного оборудования. По техническому заданию Заказчика Накопительная ёмкость Alta Tank 40 разделяется на рабочие камеры, в которые устанавливается различное технологическое оборудование и дополнительные патрубки, закладные конструкционные элементы.
Особенности накопительных ёмкостей:
- большой полезный объем;
- широкие возможности по организации и размещению подводящей трубы, установке дополнительного оборудования;
- оптимальный размер люка обслуживания накопительной ёмкости Alta Tankм3
- оптимальный размер люка обслуживания.
Срок службы корпуса накопительных ёмкостей Alta Tank более 50-ти лет. Накопительная ёмкость Alta Tank 40 изготовлена из полипропилена и усилена рёбрами жесткости.
Накопительная ёмкость Alta Tank 40 не требует обязательной сертификации, декларирования либо подтверждения соответствия санитарно-гигиеническим, эпидемиологическим и иным требованиям.
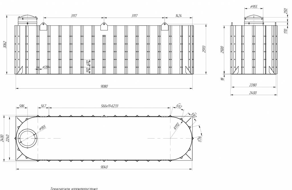
Размеры и габариты
Характеристики
|
Транспортные габариты (Длина х Ширина х Высота), мм
|
9200х2400х3132 |
|
Транспортировочный вес, кг
|
1150 |
|
Габариты (Диаметр х Высота), мм
|
9080х2400х3062 |
|
Размеры камеры (Д х Ш х В), мм
|
9024х2224х2500 |
|
Объем, м³
|
40 |
|
Колодец обслуживания (Диаметр х Высота), мм
|
955х400 |



